Domus Trogir

Domus – agencija za promet nekretninama Trogir

  • Naslovna
  • Nekretnine
    • Stanovi
  • Vođenje apartmana
  • O nama
  • Kontakt
Domus Trogir

Domus – agencija za promet nekretninama Trogir

  • Naslovna
  • Nekretnine
    • Stanovi
  • Vođenje apartmana
  • O nama
  • Kontakt
Domus Trogir

Domus – agencija za promet nekretninama Trogir

  • Naslovna
  • Nekretnine
    • Stanovi
  • Vođenje apartmana
  • O nama
  • Kontakt
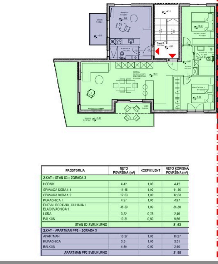
KASTEL NOVI*** Dvosobni stan na drugom katu, 81,63 m2 !
  • Home
  • Kaštel Novi

KASTEL NOVI*** Dvosobni stan na drugom katu, 81,63 m2 !

 

277,379 €

  • bandicam 2026-04-28 11-33-34-837
  • WhatsApp Image 2026-02-20 at 15.42.34
  • 11
  • 10
  • 7
  • 5
  • 4
  • 2
  • 1
  • bandicam 2026-04-28 11-33-34-837
  • WhatsApp Image 2026-02-20 at 15.42.34
  • 11
  • 10
  • 7
  • 5
  • 4
  • 2
  • 1
KASTEL NOVI*** Dvosobni stan na drugom katu, 81,63 m2 !

Šifra objekta :

 None

Podijeli

Dodano u favorite

Dodaj u favorite

Ispis

Spavaće sobe
2
Kupaonice
1
Parkirnih mjesta
1
Površina
81,63 m2

Opis

Na prodaju stavljamo dvosobni stan ( OZNAKE S3 – ZGRADA 3 ) na drugom katu stambene zgrade u izgradnji u Kaštel Novom.

 

Stan se sastoji od hodnika, dvije spavaće sobe, kupaonice s wcom, dnevnog boravka s kuhinjom i blagavaonom, balkona i loggie.

 

Pripada mu jedno vanjsko parkirno mjesto. Također se nudi mogućnost kupnje dodatnog natkrivenog parkirnog mjesta po cijeni od 16.000 EUR. Prodaja se vrši po principu “ključ u ruke”, što podrazumijeva ugradnju ulaznih blindo i sobnih vrata, podnog grijanja u kupaonici, keramike, parketa, PVC stolarije VEKA, sanitarija LAUFEN,  komarnika na malim prozorima.

 

Za više informacija kontaktirajte agenta.

Pregledi nekretnine

Slične nekretnine

9

KASTEL NOVI*** Apartman na prvom katu, 23,99 m2 !

Added: 28. travnja 2026.
Kupaonice
1
Površina
23,99 m2

87,167 €

8

Luksuzni trosobni stan na prvom katu novogradnje, 98,97 m2 !

Added: 1. kolovoza 2025.
Površina
98,97

360,000 €

Domus Trogir

Ulica kneza Domagoja 1, 21223, Okrug Gornji

099 794 9786

domustrogirproperty@gmail.com

DOMUS TROGIR, obrt za posredovanje u prometu nekretninama vl. Ivan Dujić

Kneza Domagoja 1, Okrug Gornji

+385 99 794 9786

domustrogirproperty@gmail.com
  • Naslovna
  • Nekretnine
    • Stanovi
  • Vođenje apartmana
  • O nama
  • Kontakt

Pravila privatnosti

© 2026. All rights reserved.

Developed by Insieme izrada web stranica

KASTEL NOVI*** Apartman na prvom katu, 21,98 m2 KASTEL NOVI*** Apartman na drugom katu, 21,98 m2
Domus Trogir
  • Login
Forget Password?

Koristimo kolačiće na našoj web stranici kako bismo vam pružili najrelevantnije iskustvo pamteći vaše postavke i ponovljene posjete. Klikom na "Prihvati sve" pristajete na upotrebu SVIH kolačića. Međutim, možete posjetiti "Postavke kolačića" kako biste dali kontrolirani pristanak. Pravila privatnosti
PostavkePrihvati sve
Manage consent

Privacy Overview

Ova web stranica koristi kolačiće za poboljšanje vašeg iskustva dok koristite  web stranicu. Kolačići koji su kategorizirani po potrebi pohranjuju se u vaš preglednik jer su bitni za rad osnovnih funkcionalnosti web stranice. Također koristimo kolačiće trećih strana koji nam pomažu analizirati i razumjeti kako koristite ovu web stranicu. Ovi kolačići bit će pohranjeni u vašem pregledniku samo uz vaš pristanak. Također imate mogućnost odustajanja od ovih kolačića. No, isključivanje nekih od ovih kolačića može utjecati na vaše iskustvo pregledavanja.
Neophodni
Uvijek omogućeno
Potrebni kolačići su apsolutno neophodni za pravilno funkcioniranje web stranice. Ovi kolačići anonimno osiguravaju osnovne funkcionalnosti i sigurnosne značajke web stranice.
KolačićTrajanjeOpis
cookielawinfo-checkbox-analytics11 monthsThis cookie is set by GDPR Cookie Consent plugin. The cookie is used to store the user consent for the cookies in the category "Analytics".
cookielawinfo-checkbox-functional11 monthsThe cookie is set by GDPR cookie consent to record the user consent for the cookies in the category "Functional".
cookielawinfo-checkbox-necessary11 monthsThis cookie is set by GDPR Cookie Consent plugin. The cookies is used to store the user consent for the cookies in the category "Necessary".
cookielawinfo-checkbox-others11 monthsThis cookie is set by GDPR Cookie Consent plugin. The cookie is used to store the user consent for the cookies in the category "Other.
cookielawinfo-checkbox-performance11 monthsThis cookie is set by GDPR Cookie Consent plugin. The cookie is used to store the user consent for the cookies in the category "Performance".
viewed_cookie_policy11 monthsThe cookie is set by the GDPR Cookie Consent plugin and is used to store whether or not user has consented to the use of cookies. It does not store any personal data.
Funkcionalni
Funkcionalni kolačići pomažu u izvršavanju određenih funkcija poput dijeljenja sadržaja web stranice na platformama društvenih medija, prikupljanja povratnih informacija i drugih značajki trećih strana.
Izvođenje
Kolačići izvedbe koriste se za razumijevanje i analizu ključnih indeksa izvedbe web stranice koji pomažu u pružanju boljeg korisničkog iskustva posjetiteljima.
Analitika
Analitički kolačići koriste se za razumijevanje interakcije posjetitelja s web lokacijom. Ovi kolačići pomažu u pružanju informacija o mjernim podacima, broju posjetitelja, stopi napuštanja početne stranice, izvoru prometa itd.
Oglasi
Oglasni kolačići koriste se za pružanje posjetiteljima relevantnih oglasa i marketinških kampanja. Ovi kolačići prate posjetitelje na svim web stranicama i prikupljaju podatke za pružanje prilagođenih oglasa.
Ostali
Ostali nekategorizirani kolačići su oni koji se analiziraju i još nisu razvrstani u kategoriju.
Spremi i prihvati
hr Croatian
hr Croatiancs Czechnl Dutchen Englishde Germansk Slovaksv Swedish